Envíos a todo el país
No tienes artículos en tu carrito de compras.

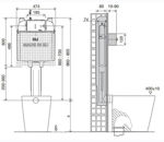
Cisterna de embutir Oli 74 Plus Olipure

Cisterna empotrada de doble descarga de 6/3 litros.
U$S 230
Marca: Oli
Código: 880782
¿Cómo lo puedo pagar?
HSBC_MASTERBRAND_LOGO_WW_RGB
Plazos y costos de envío

Costos de envíos

Montevideo
Envios desde $230

Interior del país a través de agencias
____________

Consulta áreas de cobertura y mas info aquí 

 

- OLIpure es un sistema de almacenamiento cerrado que, con cada descarga, refresca su inodoro con líquido de limpieza.

- El líquido desinfectante siempre está en un circuito cerrado, a diferencia de las tabletas tradicionales, que siempre están en contacto con el agua, causando daños en el tanque de lavado y sus componentes. Estéticamente es una solución más elegante porque está oculta dentro del tanque.

-Universal: Compatible con los desinfectantes líquidos de Inodoros existentes en el mercado.
-Duradero: Capacidad de almacenamiento de 450 ml.

 

Cisterna de polipropileno (PP) altamente resistente e inalterable al estrés térmico.
Espesor total de 80 mm.
Suministrado con revestimiento anticondensación.
EN 14055 CL1.
10 años de garantía.


INCLUYE:

-tubo de descarga de 360 mm.
-Kit de fijación de pared.
-Malla para facilitar la adhesión del mortero.
-Válvula de cierre G ½ ‘’.
-Tubo de conexión Inodoros Ø45.